eladó Ház Kistarcsa:
Azonosító: #   3460

Ingatlan részletes leírása:


jellege:Családiház
ár:129.00 M Ft
terület:140 m2
telek terület:774 m2
szobák száma:5
állapota:Újszerű
épület szintjei:1
fűtés:gáz (cirko)
komfort:összkomfort
parkolás:garázs
kilátás:kertre néző
cím:Pest megye, Kistarcsa,

Ingatlan leírása:
HÉV MEGÁLLÓ KÖZELÉBEN!

EGYSZINTES, NAPPALI+4 SZOBA+GARÁZS 3 AUTÓ SZÁMÁRA!

Kistarcsa aszfaltburkolattal ellátott utcájában kínálunk megvásárlásra egy ideális elrendezésű, kiváló állapotú, önálló családi házat 774nm-es, összközműves telekkel.

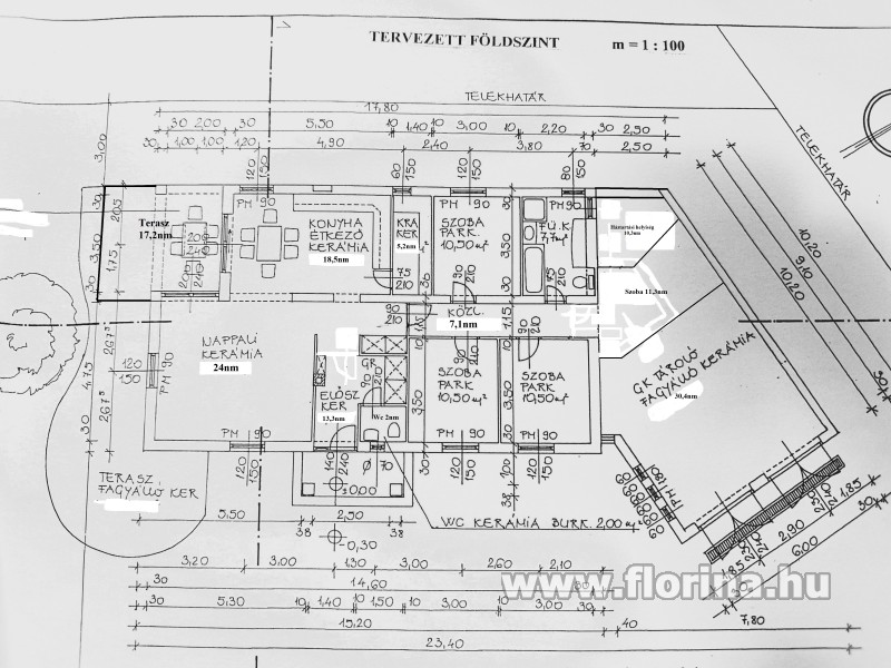
A ház kifejezetten tágas, lakóterülete nettó 130,9nm, melyhez 30,4nm-es, kétállásos garázs kapcsolódik. A ház mellett egy könnyűszerkezetes épületben további 1 autó számára van beállási lehetőség. A garázs előtti térkővel burkolt részen még 3 autó kényelmesen elfér.

A házban az előszoba igen tágas, ahol a hatalmas gardróbszekrényben rengeteg pakolási hely van. A nappali(24nm) mellett a konyha-étkező(18,5nm) és a nagyobb méretű kamra található. A valódi fa frontos konyhabútor gépesítve(elektromos sütő, gáz főzőlap, elszívó, mosogatógép) a vételár részét képezi. A nappaliból és az étkezőből is a 17,2nm-es, fedett teraszon keresztül a kertbe közvetlenül ki lehet menni.

A szobák(11,3nm, 10,5nm, 10,5nm, 10,5nm) és a fürdőszoba egy folyosóról nyílik. A nagy ablakkal rendelkező fürdőszobában kád és tusoló is helyet kapott. A folyosó végén lévő szobából nyílik egy háztartási helyiség.

Az ingatlan 2003.-ban épült 30cm-es tégla falakkal, 6cm-es Dryvit hőszigeteléssel, Bramac cserép fedéssel, borovi fenyő ablakokkal, fa födémmel, mely kőzetgyapottal szigetelt. Fűtését és a használati melegvizet Vailant típusú kombi cirkó készíti. A nappaliban klíma berendezés is helyet kapott.

Az autóbeállást biztosító kapu és a garázsajtó elektromos.

A kert nagyon szépen rendezett, gyümölcsfák és örökzöldek díszítik. Locsolást az automata öntözőrendszer biztosítja.

HÉV használatával 28 perc alatt közelíthető meg az Örs vezér tere, ahonnan rengeteg tömegközlekedési eszközzel utazhat tovább.
Bevásárlási lehetőségek 3-5 perces sétára találhatóak az ingatlantól.

Várom megtisztelő érdeklődését!

Ingatlan referense:
név: Pecsenyiczki Ildikó
e-mail: pecsenyiczki.ildiko@gmail.com
tel.: 70/930-49-55
Képek:               (kattintson a képre a nagyításhoz)

nyitólap |  ingatlanpiaci hírek |  magunkról |  ingatlankereső |  ingatlanszolgáltatások |  elérhetőségeink |  gyakran intézett kérdések

újépítésű ingatlanok |  újszerű ingatlanok |  házak |  lakások |  telkek |  vendéglátóegység |  üzlethelyiség |  iroda |  nyaraló |  ipari terület |  budapesti ingatlanok |  pest megyei ingatlanok
kiadó ingatlanok |  kiemelt hirdetések

 

web: StoneBridge