eladó Ház Budapest, XVII. kerület:
Azonosító: #   3441

Ingatlan részletes leírása:


jellege:Családiház
ár:139.00 M Ft
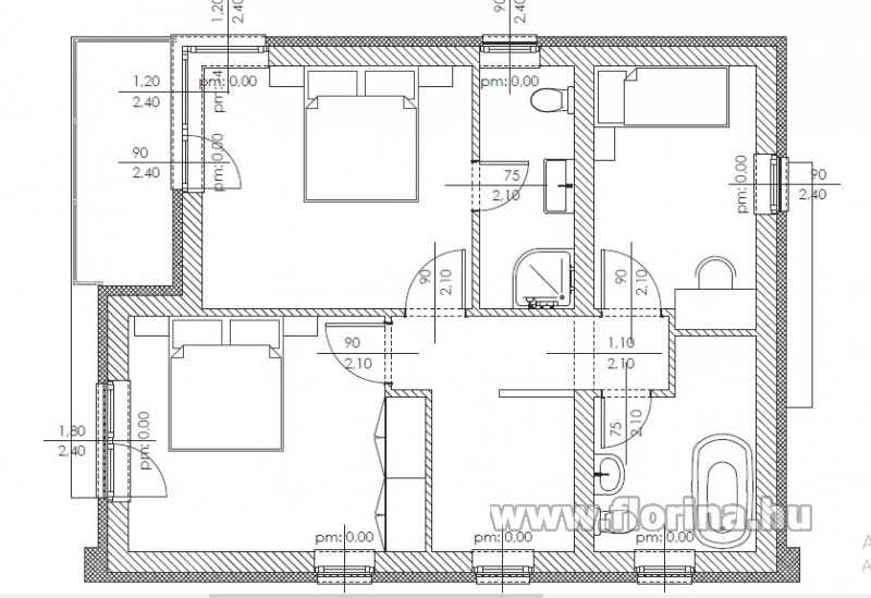
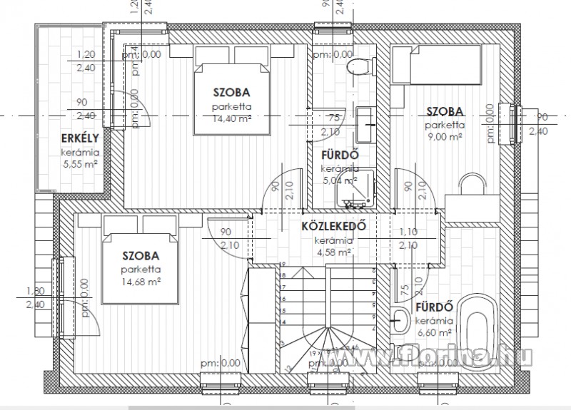
terület:150 m2
telek terület:500 m2
szobák száma:3 + 2 fél
állapota:Új építésű
épület szintjei:2
pince:van
tetőtér:nem beépíthető
fűtés:elektromos
komfort:összkomfort
parkolás:garázs
kilátás:kertre néző
cím:Budapest, XVII. kerület

Ingatlan leírása:
A 17. kerület legkedveltebb lakóparkjában, a Szőlőliget lakóparkban eladó családi ház.

A házat 30cm-es porotherm klímatéglából építik, 15 cm-es dryvitrendszerrel szigetelik, 3 rétegű műanyag nyílászárókkal és alu redőnyökkel látják el, ezen kívül riasztórendszerrel, okosotthon funkciókkal is.
A burkolatokat 8000 Ft értékben tartalmazza az ár, a szaniterek és a beltéri ajtók is választhatóak.

A kerítés és a viacolor kocsibeálló is benne van az árban.

Az ár a kulcsrakész állapotot tartalmazza, tehát a fal színek, a fürdőszoba burkolatok is még választhatóak.

Két évtizede az építőiparban, kiemelkedően magas minőséget képviselő vállalkozó által építettet.

Rugalmasan megtekinthető, a hét minden napján várom hívását.

Ügyvédi háttérrel és Ingyenes Hiteltanácsadásban is tudok ügyfeleimnek segíteni.

Ingatlan referense:
név: Katona Gergely
e-mail: katonagergely82@gmail.com
tel.: +36 20 532 5288
Képek:               (kattintson a képre a nagyításhoz)

nyitólap |  ingatlanpiaci hírek |  magunkról |  ingatlankeresÅ‘ |  ingatlanszolgáltatások |  elérhetÅ‘ségeink |  gyakran intézett kérdések

újépítésű ingatlanok |  újszerű ingatlanok |  házak |  lakások |  telkek |  vendéglátóegység |  üzlethelyiség |  iroda |  nyaraló |  ipari terület |  budapesti ingatlanok |  pest megyei ingatlanok
kiadó ingatlanok |  kiemelt hirdetések

 

web: StoneBridge